
Ramchandra Residence
Location - Bangalore
Site Area - 1200 Sft
Total Built up Area - 2300 Sft
Status - Completed
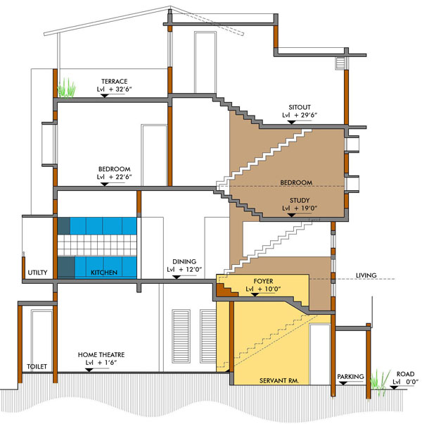
The brief was to have four bedroom house. The idea was to bring playfulness in arrangement of spaces, so the house was conceptualized by split levels complementing better physical and visual connection between spaces.
The lower level of the house accommodates car parking and home theatre, the upper ground level accommodates living spaces and a bed room and top most floor has three bedrooms. The study and sitting area are located at the mid landing levels.








